Library Pillar and Restoration Project To Begin Soon!

 

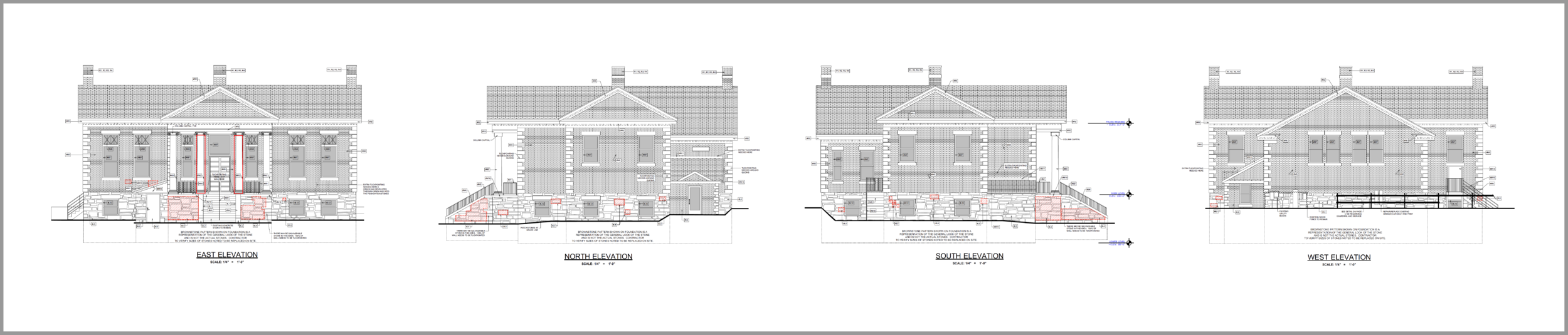
The work will consist of the exterior restoration of the brownstone and brick building including replacing the two inside brownstone columns on the East entry porch, select brownstone stone replacement in the foundation wall on Washington Ave., and selective tuckpointing. IF there are leftover funds from the main projects there will be repainting exterior trim, windows and railings, and rebuilding portions of the existing retaining wall along Broad St. 

The City’s brownstone supply will be evaluated soon.  That same day we will have a preliminary construction meeting.  A start date for the projects will be determined then. The start date will likely be in mid-September.